Bremen-Aumund-Hammersbeck: Attraktive Gewerbeimmobilie in zentraler Lage

Bremen, Sonstige
Kaufpreis 595.000 €
Baujahr 1990

Allgemeine Objektdaten

Objekt-ID:
07570
FID:
FIO-10515314870
Kaufpreis:
595.000 €
Käuferprovision:
Provisionsfrei für Käufer
Ort:
28755 Bremen
Baujahr:
1990
Grundstücksfläche:
1608 m2

Objektbeschreibung

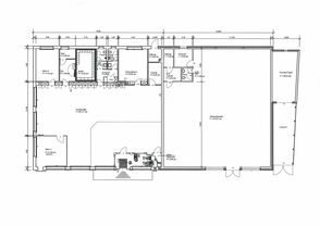
Die angebotene Gewerbeimmobilie ist zurzeit in zwei Einheiten aufgeteilt.

Die linke Fläche wurde lange Zeit als eine Filiale der Sparkasse Bremen genutzt. Diese Einheit verfügt über gesamt ca. 341 m² Nutzfläche. Die Fläche ist frei und wird auch nutzerfrei an den Erwerber übergeben.
Diese Einheit verfügt zurzeit über keine Heizungsanlage.

Die zweite Gewerbeeinheit mit einer gesamten Fläche von ca. 292 m² wird frei an den Erwerber übergeben. Diese Einheit wird mit einer Gasheizung aus dem Jahr 1992 beheizt.

Die Flächenaufteilung können Sie der beigefügten Grundrisszeichnung entnehmen.

Objektlage

Vegesack/Aumund ist ein beliebter Stadtteil in Bremen-Nord der alle Bereiche des täglichen Bedarfes, kulturelle Angebote und soziale Einrichtungen bietet. Ob für den schnellen Einkauf oder die Shoppingtour, ob gemütliches Kaffeetrinken oder ein Spaziergang an der Weserpromenade - alles liegt nah beieinander. Auch Ärzte, Kindergarten und Schulen sowie das Behördenzentrum befinden sich quasi "um die Ecke". Für die größere Reichweite stehen Ihnen öffentliche Verkehrsmittel und der Anschluss an die A 270 zur Verfügung.


Sonstiges

Bei Erwerb dieser Immobilie fällt für Sie keine zusätzliche Maklerprovision an.
VERBRAUCHERINFO
1. Maklerleistung ist der Nachweis der Gelegenheit zum Abschluss eines Vertrages bzw. Vermittlung eines Vertrages über eine Immobilie gegen die Courtagezahlungspflicht des Kunden
2. Unternehmer,Anschrift,Beschwerdeadressat
LBSi NordWest, Himmelreichallee 40, 48149 Münster, Tel:0251/973233-997, eMail:info@lbsi-nw.de
GF:Martin Englert, Volker Goldbeck
3. Es besteht ein Widerrufsrecht
4. Weitere Infos: verbraucherinfo.lbsi-nordwest.de

Anbieter kontaktieren



Bitte rechnen Sie 2 plus 9.